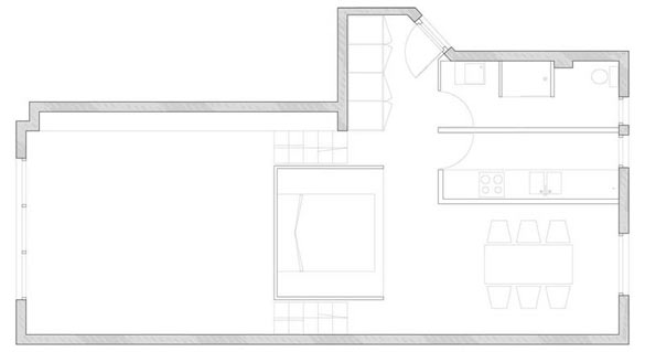
Најкреативните концепти потекнуваат од најмалите простори, а тоа уште еднаш се докажува со овој проект на тимот на архитектонското студио ECDM. Многумина веројатно би ја одбиле понудата за дизајнирање на ваков апартман, а токму тоа го прави ова студио посебно. Имено, во овој мал стан тие требало да интегрираат спална соба. Со совршена комбинација на форма и функција, сопственикот добил приватна спална соба која е исклучена од главниот простор. Проектот именуван “Appartement chez Valentin” се наоѓа во Монтруж, Франција.














Станете наш facebook фан. Ви Благодариме!